Наши преимущества


Помощь в подборе цвета
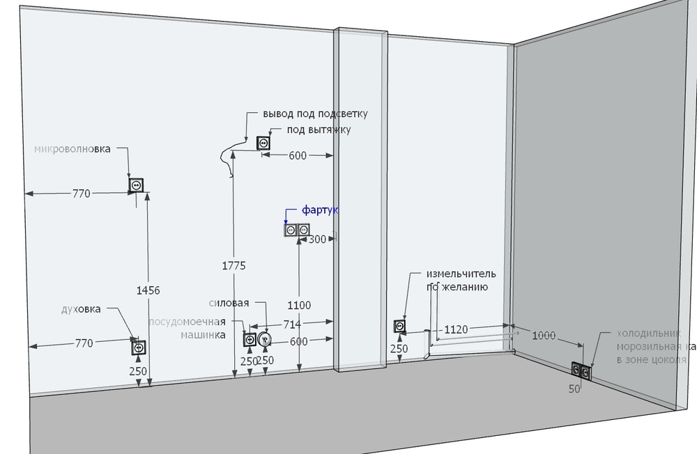
Спланируем розетки, освещение
Индивидуальный проект
Фотография готовой кухни
Еврозапил столешницы
оформление договора
Сделаем скос или радиус на столешнице
Монтаж керамогранита на фартук без стенного бардюра
Врежем варочные панели в один уровень со столешницей
Врежем мойки в один уровень со столешницей
Установим столешницу и фартук из HPL пластика без стенного бардюра
Установим мойку подстольного монтажа